この物件の募集は終了しました。
【外観】
-
バストイレ別
-
室内洗濯機置場
-
独立洗面台
- 物件名
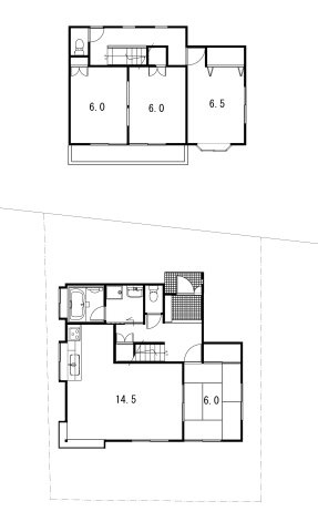
- 江木町中古住宅
- 向き
- 南
- 種別/構造
- 中古一戸建/木造
- 築年月
- 1998年4月(築27年)
- 総戸数
- 1戸
- 設備条件
-
- ファミリー向け
- 室内洗濯機置場
- フローリング
- 出窓
- 都市ガス
- 公営水道
- 公共下水
- 電気有
- 駐車2台可
- ガスコンロ
- コンロ2口以上
- システムキッチン
- コンロ3口
- バス・トイレ別
- 洗面台
- トイレ2ヶ所
- 浴室1坪以上
- 独立洗面台
- 設備(その他)
-
-
-
- 戸数
- 1戸 / 1戸
-
保育園
敬西寺保育園
143m(2分)
-
クリーニング
クリーニングホシノ高崎江木町店
321m(5分)
-
郵便局
高崎江木郵便局
391m(5分)
-
小学校
高崎市立城東小学校
471m(6分)
-
コンビニエンスストア
ローソン 高崎江木店
678m(9分)
-
保育園
ひばり保育園
873m(11分)
-
幼稚園
すみれ幼稚園
954m(12分)
-
幼稚園
明徳幼稚園
1315m(17分)
-
駅
高崎駅
1425m(18分)
-
中学校
高崎市立高松中学校
2076m(26分)
物件の特徴
基本情報
設備条件
周辺施設
近隣の物件
よく見られている物件
江木町中古住宅




